ROOMS

レイアウトや照明にこだわった快適な客室
(全室エアウィーヴ製マットレス設置)

客室のイメージ

子供(小学生以下)

※料金については「お子様のご宿泊」をご確認ください

たばこ
朝食

室内の機能性や居心地感にこだわったほか、
ファミリーやグループなど複数名でも使い勝手の良いお部屋をご用意いたしました。

お子様のご宿泊

小学生以下のお子様は、添い寝無料です。
シングルは添い寝1名様まで、
ツイン・トリプルは添い寝2名様まで、
コネクティングルームは添い寝3名様までご利用になれます。

朝食付プランでお申込みの場合、添い寝のお子様も追加料金なしで
お召し上がりになれます。

SINGLE ROOM

ベッド、デスク、ソファ、テレビを機能的に配置したコンパクトでも使い勝手の良い客室です。
デスクワークや食事のしやすいワイドデスクを採用しております。

広さ 11m²
ベッドサイズ 110cm
図:シングルルーム間取り

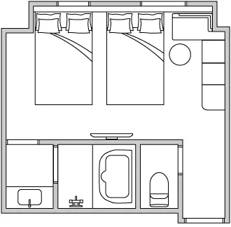
TWIN ROOM

テレビが見やすい配置のソファ、バスルームとトイレがセパレートの設計で、居住性を追求した客室です。
小さなお子様連れの場合でも2台のベッドをくっつけることが可能です。

広さ 22.5㎡
ベッドサイズ 120cm×2台
図:ツインルーム間取り

CONNECTING ROOM

ファミリーやグループで使い勝手の良い、隣接したツインルームとシングルルームを、お部屋内にある内ドアでつないだコネクティングルームです。

広さ 22.5㎡+11㎡(ツイン+シングル)
ベッドサイズ 120cm×2台+110cm×1台
お客様の声(一例) ・照明や部屋の温度、起床時間の違いも気にならず、
家族旅行でも気兼ねなく過ごせました
───────────────────────────
・お風呂などが別々で使い勝手が良かったです。
───────────────────────────
・プライバシーを保ちつつ気軽に行き来でき、
楽しく過ごせました。
図:コネクティングルーム間取り

TRIPLE ROOM

ファミリーやグループで使い勝手の良い、エキストラベッド設置のトリプルルームです。

広さ 22.5㎡
ベッドサイズ 120cm×2台
90cm×1台
図:トリプルルーム間取り

FACILITIES & AMENITY

客室設備 01

  • アイコン:空調 (一括管理)

    空調
    (一括管理)

  • アイコン:ユニットバス

    ユニットバス

  • アイコン:姿見

    姿見

  • アイコン:温水式 洗浄トイレ

    温水式
    洗浄トイレ

  • アイコン:枕元USB コンセント

    枕元USB
    コンセント

  • アイコン:HDMI ケーブル

    HDMI
    ケーブル

  • アイコン:コンビネー ション枕

    コンビネー
    ション枕※

  • アイコン:インターネット (Wi-Fi・有線)

    インターネット
    (Wi-Fi・有線)

  • アイコン:電話(内線)

    電話(内線)

  • アイコン:VOD (有料)

    VOD
    (有料)

  • スマートテレビ※

    スマートテレビ※

  • アイコン:BS放送

    BS放送

  • アイコン:冷蔵庫

    冷蔵庫

客室備品・
アメニティ 02

  • アイコン:加湿器

    加湿器

  • アイコン:歯ブラシ※ カミソリ※

    歯ブラシ※
    かみそり※

  • アイコン:ボディソープ ハンドソープ

    ボディソープ
    ハンドソープ

  • アイコン:シャンプー・ リンス

    シャンプー・
    リンス

  • アイコン:使い捨てスリッパ

    使い捨て
    スリッパ

  • 電気スタンド

    電気スタンド

  • アイコン:湯沸かし ポット

    湯沸かし
    ポット

  • カップ・グラス

    カップ・グラス

  • アイコン:ティッシュ ペーパー

    ティッシュ
    ペーパー

  • アイコン:ドライヤー

    ドライヤー

  • アイコン:ナイトウェア

    ナイトウェア※

  • アイコン:バスタオル フェイスタオル

    バスタオル
    フェイスタオル

  • アイコン:バスマット

    バスマット

  • アイコン:靴べら

    靴べら

  • アイコン:ハンガー

    ハンガー

  • アイコン:消臭ミスト

    消臭ミスト

  • アイコン:時計

    時計

  • 画像:バゲッジラック

    バゲッジラック

貸出備品・
サービス 03

  • アイコン:サーキュ レーター

    サーキュ
    レーター

  • アイコン:ズボン プレッサー

    ズボン
    プレッサー※

  • アイコン:スチームアイロン

    スチームアイロン

  • アイコン:毛布

    毛布

  • アイコン:救急絆創膏

    救急絆創膏

  • アイコン:爪切り

    爪切り

  • アイコン:スマホ用 充電器

    スマホ用
    充電器

  • アイコン:近隣 ガイドマップ

    近隣
    ガイドマップ

  • アイコン:貸出用傘

    貸出用傘

  • アイコン:体温計

    体温計

  • アイコン:裁縫セット

    裁縫セット

  • アイコン:宅配便受付 (元着払い)

    宅配便受付
    (元着払い)

  • アイコン:コピー・FAX(有料)

    コピー・FAX(有料)

※当ホテルの枕は、フェザー(柔らかめ)パイプ(硬め)のコンビネーション仕様となっており、睡眠中のサポートにこだわり目覚めるまで枕の形が変わりにくくなっております。
 
※40型スマートテレビを導入し、各種動画配信サービスも利用可能です。HDMIケーブルを常設し、パソコンやゲーム機の接続も可能です。Amazonプライム、Netflixなどの一部サービスはご自身のアカウントが必要になります。
 
※歯ブラシ及びかみそりは、プラスチックごみ削減のため、お部屋に常備しておりません。歯ブラシ、かみそりをお持ちのお客様には、スタンプカード(宿泊5回)で500円のクオカードを進呈しております。
 
※ナイトウエアは1階クローゼットからお待ちください。
 
※貸し出し備品は、数に限りがございますので、フロントにお問い合わせのうえ、フロントへお越しください。
 
※ズボンプレッサーは各階、エレベーターホールにございますのでご自由にお持ちください。台数に限りがございますので、ご使用後は次のお客様のために返却をお願いいたします。
 

POINT

  • 画像:エアウィーヴ

    「エアウィーヴ」のマットレスを全客室に設置

    当ホテルではより快適にお過ごしいただくために、全ての客室に「エアウィーヴ」のマットレスを設置しています。

  • 画像:選べる自分にあった枕

    選べる自分にあった枕

    各個人に最適な枕を、形状で4種類、高さで2種類、計 8種類の中からお選びいただけます。 フロントロビーに設置している枕判定フローチャートにて、枕の形状を4種類から選んでいただけます。 高さは、タブレットによる測定アプリにてチェックイン時に頭の形状を測定し、2種類(高い・低い)から判定します。

  • 画像:パジャマ

    通気性・保温性に優れたパジャマ

    経編ニットは通常の織物と比べ、通気性・ストレッチ性に優れ、柔らかい肌触りと、フィット感があるのが特徴です。 肌に当たる裏面には綿を使用しており、夏は通気性・吸湿性に優れサラサラ、冬は保温性があり暖かい着心地で、眠りを助けるパジャマとなっています。

  • 画像:シャワーヘッド

    肌表面温度の上昇率が高いシャワーヘッド

    0.0001mmの超微細気泡(ウルトラファインバブル)が発生するシャワーヘッド「ボリーナ」を全室導入。⼀般的なシャワーヘッドに比べて、肌の表面温度の上昇率が6倍も⾼くなる(製造元調べ)ことで、良質な睡眠につながる体温調整を助けます。

  • 40型スマートテレビ

    壁掛け式の40型スマートテレビを導入し、各種動画配信サービスも利用可能(※)です。HDMIケーブルを常設し、パソコンやゲーム機の接続も可能です。
    ※Amazonプライム、Netflixなどの一部サービスはご自身のアカウントが必要となります。

  • アメニティコーナー

    「エプソムバスソルト」や「ねむねむプラスハーブティー」、歯ブラシ、かみそり、ヘアーブラシ、スキンケア一式(DHC)、綿棒、ボディータオル、コーヒー、紅茶、緑茶などをご用意しております。歯ブラシ、かみそりをお持ちのお客様には、スタンプカード(宿泊5回)で500円のクオカードを進呈しております。

  • 歯ブラシ・かみそり

    プラスチックごみ削減のため、お部屋に常備しておりません。歯ブラシ、かみそりをお持ちのお客様には、スタンプカード(宿泊5回)で500円のクオカードを進呈しております。

ページのトップへ

空室検索

子供(小学生以下)

※料金については「お子様のご宿泊」をご確認ください

たばこ
朝食