INFORMATION

家族旅行やグループ旅行におすすめのコネクティングルーム



小さなお子様を連れての旅行は、周囲への気遣いやお部屋の使い勝手が気になるもの。でも、コネクティングルームなら、家族みんなが快適に過ごせます。
お子様連れの旅行でも安心して過ごせる設計です。それぞれのお部屋にベッドとバス・トイレが完備されており、快適にお過ごしいただけます。
お子様が寝た後も、親御さんは隣室でゆっくりとくつろげるため、家族全員がリラックスできる時間を確保できます。
また、小学生以下のお子様は添い寝無料なので、家族旅行のコストを抑えながら、より広々とした空間で宿泊できます。

 

コネクティングルームとは

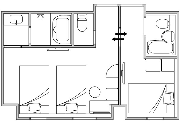
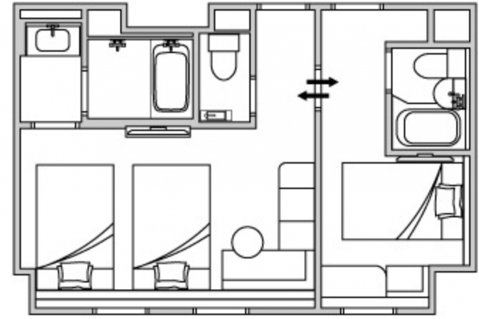
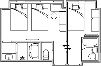
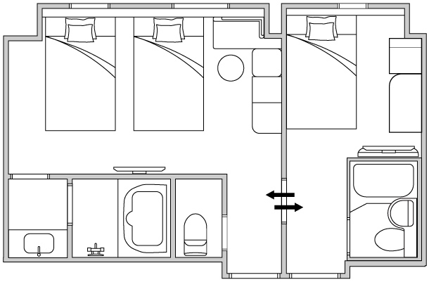
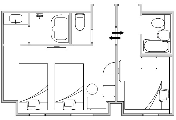
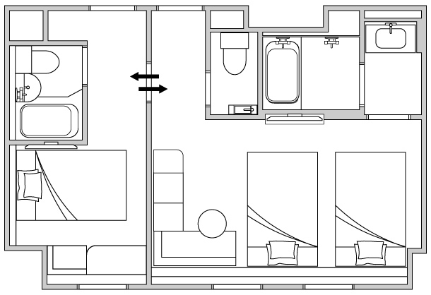
コネクティングルームは、隣り合うふたつの客室を、部屋内の「コネクティングドア」でつなげたお部屋です。
それぞれの部屋が独立しているため、適度にプライバシーを保ちながら、自由に行き来できるのが特徴です。
各お部屋にそれぞれベッドとバス・トイレが完備されているので、朝の身支度や出発前の忙しい時間帯でも、各自のタイミングで快適にお過ごしいただけます。

家族旅行では、快適な宿泊環境が重要です。コネクティングルームなら、お子様連れでも安心して過ごせます。

お子様連れでも安心!


小さなお子様がいるご家庭でも、お部屋を行き来しながら安全に過ごせます。
小学生以下のお子様は1ベッドにつき1名まで添い寝無料!広々とした空間でゆったりと休めます。
お子様が寝た後は、親御さんも静かに過ごせるので、読書や映画鑑賞など自由な時間を楽しめます。
2部屋分のスペースがあるので、子供用品もすっきり収納。荷物の整理もしやすいです。
バス・トイレがそれぞれの部屋にあるので朝の準備もスムーズ!朝のバタバタも解消。
 

コネクティングルームは、友人との旅行にもおすすめ。プライバシーを確保しながら、楽しい時間を共有できます。

友人とのグループ旅行を快適に!

それぞれの部屋が独立しているので、個室感覚で快適に過ごせて、自由な時間も大切にできます。
2つの客室を行き来することができるので、深夜まで気兼ねなくおしゃべりしたあとは、コネクティングドアを閉めれば、お互いのリズムを崩さず快適に過ごせます。
それぞれのお部屋にバス・トイレがあるので支度がスムーズ。朝の準備もストレスフリー!時間を有効に使えます。

実際にコネクティングルームをご利用いただいたお客様よりお寄せいただいた声を紹介いたします。
コネクティングルームで寛ぐファミリー

お客様の声

・家族4人が快適に過ごせて、機能的な部屋でゆっくりできました。
・夜に電気を消すタイミングや部屋の温度、朝起きる時間の違いも気にならず、家族旅行でも気兼ねなく過ごせました。
・お風呂、トイレが別々で使い勝手が良かったです。
・プライバシーを保ちつつ気軽に行き来できて、楽しく過ごせました。
・一緒に泊まった友人との良い距離感が楽しめて大満足でした。
・2部屋が内ドアでつながる構造なので、ドアを閉めれば個室になり快適でした。
バス・トイレも各部屋にあるのでお支度もスムーズです。(一部のツインルームは浴室とトイレがセパレート)
寝るときは別々に。ごゆっくりおくつろぎください。
コンセントの順番待ちをすることもありません。
名古屋栄ワシントンホテルプラザ(シングル+ツイン)の画像
名古屋栄ワシントンホテルプラザ(シングル+ツイン)
ワシントンR&Bホテル新大阪北口(シングル+シングル)の画像
ワシントンR&Bホテル新大阪北口(シングル+シングル)
熊本ワシントンホテルプラザ(シングル+ツイン)の画像
熊本ワシントンホテルプラザ(シングル+ツイン)
札幌ワシントンホテルプラザ(ツイン+ツイン)の画像
札幌ワシントンホテルプラザ(ツイン+ツイン)
岐阜ワシントンホテルプラザ(シングル+ツイン)の画像
岐阜ワシントンホテルプラザ(シングル+ツイン)
ワシントンR&Bホテル大塚駅北口(シングル+ツイン)の画像
ワシントンR&Bホテル大塚駅北口(シングル+ツイン)
ワシントンR&Bホテル梅田東(シングル+ツイン)の画像
ワシントンR&Bホテル梅田東(シングル+ツイン、シングル+シングル)
ワシントンR&Bホテル蒲田東口(シングル+シングル)の画像
ワシントンR&Bホテル蒲田東口(シングル+シングル)
ワシントンR&Bホテル東日本橋(シングル+シングル)の画像
ワシントンR&Bホテル東日本橋(シングル+シングル)
ワシントンR&Bホテル東京東陽町(シングル+シングル)の画像
ワシントンR&Bホテル東京東陽町(シングル+シングル)
ワシントンR&Bホテル神戸元町(シングル+シングル)の画像
ワシントンR&Bホテル神戸元町(シングル+シングル)
ワシントンR&Bホテル仙台広瀬通駅前(シングル+シングル)の画像
ワシントンR&Bホテル仙台広瀬通駅前(シングル+シングル)
ワシントンR&Bホテル金沢駅西口(シングル+シングル)の画像
ワシントンR&Bホテル金沢駅西口(シングル+シングル)
ワシントンR&Bホテル札幌北3西2(シングル+ツイン)の画像
ワシントンR&Bホテル札幌北3西2(シングル+ツイン)
ワシントンR&Bホテル名古屋栄東(シングル+ツイン)の画像
ワシントンR&Bホテル名古屋栄東(シングル+ツイン)
ワシントンR&Bホテル新横浜駅前(シングル+ツイン)の画像
ワシントンR&Bホテル新横浜駅前(シングル+ツイン)
ワシントンR&Bホテル熊本下通(シングル+シングル)の画像
ワシントンR&Bホテル熊本下通(シングル+シングル)
ワシントンR&Bホテル盛岡駅前(シングル+シングル)の画像
ワシントンR&Bホテル盛岡駅前(シングル+シングル)

名古屋栄ワシントンホテルプラザ
シングル(12.2㎡)+ツイン(26㎡)
大人最大3名
ワシントンR&Bホテル上野広小路
ツイン(22.5㎡)+シングル(11㎡)
大人最大3名
岐阜ワシントンホテルプラザ
シングル(12.0m²~12.6m²)+ツイン(13.8m²)
大人最大3名
札幌ワシントンホテルプラザ
ツイン(20.9m²~21.8m²)+ツイン(20.9m²~21.8m²)
大人最大4名
ワシントンR&Bホテル京都四条河原町
シングル(11.5㎡)+シングル(11.5㎡)
大人最大2名
ワシントンR&Bホテル仙台東口
シングル(11.5㎡)+シングル(11.5㎡)
大人最大2名
ワシントンR&Bホテル新大阪北口
シングル(11.5㎡)+シングル(11.5㎡)
大人最大2名
熊本ワシントンホテルプラザ
シングル(14㎡)+ツイン(28㎡)
大人最大3名
博多中洲ワシントンホテルプラザ
シングル(13.5㎡)+シングル13.5㎡)
大人最大2名
ワシントンR&Bホテル大塚駅北口
ツイン(22.5㎡)+シングル(11㎡)
大人最大3名
ワシントンR&Bホテル博多駅前第2
シングル(11.5㎡)+シングル(11.5㎡)
大人最大2名
ワシントンR&Bホテル名古屋新幹線口
シングル(11.5㎡)+シングル(11.5㎡)
大人最大2名
ワシントンR&Bホテル梅田東
シングル(11㎡)+シングル(11㎡)
ツイン(22.5㎡)+シングル(11㎡)
大人最大3名
ワシントンR&Bホテル京都駅八条口コネクティングルーム
ワシントンR&Bホテル京都駅八条口
ツイン(22.5㎡)+シングル(11㎡)
大人最大3名
ワシントンR&Bホテル蒲田東口コネクティングルーム
ワシントンR&Bホテル蒲田東口
シングル(11㎡)+シングル(11㎡)
大人最大2名
ワシントンR&Bホテル東日本橋
シングル(11㎡)+シングル(11㎡)
大人最大2名
ワシントンR&Bホテル東京東陽町
シングル(11㎡)+シングル(11㎡)
大人最大2名
ワシントンR&Bホテル神戸元町
シングル(11㎡)+シングル(11㎡)
大人最大2名
ワシントンR&Bホテル仙台広瀬通駅前
シングル(11㎡)+シングル(11㎡)
大人最大2名
ワシントンR&Bホテル金沢駅西口
シングル(11㎡)+シングル(11㎡)
大人最大2名
ワシントンR&Bホテル札幌北3西2
ツイン(22.5㎡)+シングル(11㎡)
大人最大3名
ワシントンR&Bホテル名古屋栄東
ツイン(22.5㎡)+シングル(11㎡)
大人最大3名
ワシントンR&Bホテル新横浜駅前
ツイン(22.5㎡)+シングル(11㎡)
大人最大3名
ワシントンR&Bホテル熊本下通
シングル(11㎡)+シングル(11㎡)
大人最大2名
ワシントンR&Bホテル盛岡駅前
ワシントンR&Bホテル盛岡駅前
シングル(11㎡)+シングル(11㎡)
大人最大2名
ホテル名 お部屋タイプ ご予約
 ワシントンR&Bホテル札幌北3西2  ツイン+シングル   ご予約はこちらから
 札幌ワシントンホテルプラザ  ツイン+ツイン   ご予約はこちらから 
 ワシントンR&Bホテル盛岡駅前   シングル+シングル  ご予約はこちらから
 ワシントンR&Bホテル仙台広瀬通駅前   シングル+シングル   ご予約はこちらから 
 ワシントンR&Bホテル仙台東口   シングル+シングル  ご予約はこちらから
 ワシントンR&Bホテル上野広小路   ツイン+シングル   ご予約はこちらから 
 ワシントンR&Bホテル東日本橋   シングル+シングル  ご予約はこちらから
 ワシントンR&Bホテル大塚駅北口   ツイン+シングル   ご予約はこちらから 
 ワシントンR&Bホテル蒲田東口   シングル+シングル  ご予約はこちらから
 ワシントンR&Bホテル東京東陽町   シングル+シングル   ご予約はこちらから 
 ワシントンR&Bホテル新横浜駅前   ツイン+シングル   ご予約はこちらから
 名古屋栄ワシントンホテルプラザ   シングル+ツイン   ご予約はこちらから 
 岐阜ワシントンホテルプラザ   シングル+ツイン  ご予約はこちらから
 ワシントンR&Bホテル金沢駅西口   シングル+シングル   ご予約はこちらから 
 ワシントンR&Bホテル名古屋新幹線口    シングル+シングル   ご予約はこちらから 
 ワシントンR&Bホテル名古屋栄東   ツイン+シングル   ご予約はこちらから 
 ワシントンR&Bホテル京都駅八条口   ツイン+シングル   ご予約はこちらから 
 ワシントンR&Bホテル京都四条河原町   シングル+シングル   ご予約はこちらから 
 ワシントンR&Bホテル新大阪北口   シングル+シングル   ご予約はこちらから 
 ワシントンR&Bホテル梅田東   シングル+シングル
 ツイン+シングル  
 ご予約はこちらから 
 ワシントンR&Bホテル神戸元町   シングル+シングル   ご予約はこちらから 
 博多中洲ワシントンホテルプラザ   シングル+シングル   ご予約はこちらから 
 熊本ワシントンホテルプラザ   シングル+ツイン    ご予約はこちらから 
 ワシントンR&Bホテル博多駅前第2   シングル+シングル   ご予約はこちらから 
 ワシントンR&Bホテル熊本下通   シングル+シングル   ご予約はこちらから 

ページトップへ戻る

閉じる

HOTELS LIST